Räyskälä Rooftop

Loppi – Penthouse apartment with a stunning lakeside view
Only 90 km from Helsinki, 115 km from Tampere and 130 km from Turku, this penthouse offers views that make the rush of the city and everyday worries fade away.

NOTE: The interior design and furnishings shown in the illustrative images do not fully reflect the final appearance of the Räyskälä Rooftop. We will update the images on this property presentation page as the renovation progresses during spring 2026.

Räyskälä Rooftop is a combined entity of two separate apartments located on the upper floor of the western wing of Räyskälä Grand Villa. The penthouse will be ready to welcome guests in April 2026. The penthouse apartments are ideal for hosting recreation days, efficient team-building events, or a traditional cottage-style holiday with family and friends for up to 15 people.

We primarily rent the luxurious penthouse apartment to groups that have booked Räyskälä Grand Villa, to enhance privacy and a sense of exclusivity. Subject to availability, the penthouse can also be rented separately for smaller meetings, celebrations, or leisure stays. However, the penthouse will not be rented to another group if Räyskälä Grand Villa is already booked, ensuring peace and privacy for the villa’s guests.

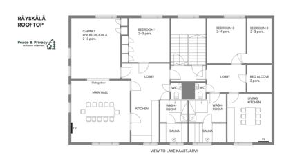
GENERAL INFORMATION: Räyskälä Rooftop consists of two separate apartments with a total floor area of 160 square metres. The larger apartment is 90 m² and the smaller one 70 m². The windows of both apartments open directly onto the scenic lakeshore views of Lake Kaartjärvi. Historically, the larger apartment served as the residence of the headmistress of the former village school located in the building, while the smaller apartment was the home of the school caretaker. During the renovation, special care has been taken to preserve the original 1950s atmosphere, allowing guests to sense what life and work were like for a village school teacher of that era.

LIVING AND KITCHEN AREAS: Both apartments are equipped with modern kitchens. Kitchen facilities include tableware for up to 15 people, an electric stove and oven, a large refrigerator, freezer, dishwasher, microwave oven, Moccamaster coffee maker, electric kettle and toaster.
Each apartment features a large 65-inch widescreen television, which can also be used as a gaming or meeting display. Complimentary Wi-Fi is available throughout the premises.

ACCOMMODATION: The penthouse offers sleeping accommodation in a total of five bedrooms for up to approximately 15 guests. The larger apartment has around 10 beds and the smaller one 6 beds. Additional accommodation can be rented in a separate corner apartment located directly below the penthouse, which offers a total of 7 beds in three bedrooms and a sofa bed in the main hall. Duvets and pillows are provided for all sleeping places.

SAUNAS, SHOWERS AND TOILETS: Each apartment has its own electric sauna, shower facilities and a separate private toilet. The additional corner apartment on the ground floor also has its own toilet.

OUTDOOR AREAS AND HOT TUBS: Directly below the penthouse, on the lakeside of Räyskälä Grand Villa, there is a 60 m² panoramic terrace featuring three wood-heated hot tubs. From the separately rentable ground-floor sauna facilities, guests have direct access to the terrace and to swimming in Lake Kaartjärvi. By the lakeshore there is also a covered barbecue area and a campfire site.

PRICING: The price of Räyskälä Rooftop includes, as agreed, the use of either one or both apartments. Optional additional services include use of the large ground-floor sauna facilities, hot tubs and barbecue shelter, final cleaning, bed linen (made up or delivered as a set), and towels. We also offer boat and canoe rentals, activity services, guided fishing, catering services, and on-site staff services such as preparing saunas and hot tubs prior to guests’ arrival. All additional services must be ordered no later than 14 days before arrival.

REQUEST A QUOTE: Räyskälä Rooftop will welcome its first guests in April 2026, but reservations are already being accepted. Request your personalised quote for renting Räyskälä Rooftop and additional services by completing the offer request form.

Räyskälä Rooftop key facts

  • 1–15 guests in daytime use
  • 1–15 beds in 5 bedrooms
  • Air conditioning
  • 2 showers and 2 toilets
  • 2 kitchen with modern equipment
  • Tableware and drinkware
  • Baby hight chair
  • Own alcoholic bewerages allowed
  • 2 electric saunas
  • 2 wide-screen TV:s (no other audio equipment)
  • Free wi-fi
  • Located on lakefront
  • Boats in summertime use
  • Football and volleyball fields
  • Outdoor and MTB routes nearby

Distances from Räyskälä Rooftop

  • Forest 0 km
  • Beach 35 m
  • Food market (local store at summertime) 2 km
  • Food market (open year-round) 21 km
  • Loppi municipal center 21 km
  • Hämeenlinna 42 km
  • Helsinki 100 km
  • Lahti 98 km
  • Tampere 115 km
  • Turku 129 km
  • Pori 170 km
  • Helsinki-Vantaa Airport 85 km
  • Räyskälä Sports Aviation Center 3 km

Pricing Examples for Räyskälä Rooftop

  • 15-person staying vacations or parties starting 56€/person/day
  • 12-person staying independent meetings starting 61€/person/day
  • Company’s recreational days for 15 persons starting 66€/person/day including accommodation and 5 canoes or rowing boats
  • 12-person weekend vacations starting 61€/person/day (Fri-Sun)
  • 10-person vacation for 5 days starting 135€/person/week
Please note: The prices are indicative non-seasonal prices. We make an offer for each group based on the time, number of persons and the length of the stay. We reserve the right to change our service prices published in internet at various third party web sites.
Räyskäläntie 670 12820.

Destination basic information

  • Total area 160 square meters
  • Built 1950, renovated 2026
  • Parking in the front of the building
  • No electric vehicle charging opportunity

Useful links