Evo Syväjärvi

Hämeenlinna – Fish, hold conferences, or gather your group of friends together
Located near the Evo hiking area by Lake Syväjärvi, where the world's noises and the curious eyes of neighbours won't reach you! This destination, situated on the shore of a dark-watered lake, consists of several buildings that provide space and activities for casual gatherings,conferences, discussions, or family celebrations.

The six-hectare Evo Syväjärvi wilderness estate is particularly suitable for anglers, workgroups, and nature lovers who aren’t afraid to take on the sauna challenge or grab the fishing gear! Lake Syväjärvi is teeming with fish, so everyone can become their own lucky angler. Approximately 2500 kilograms of salmon are stocked in the lake annually, ensuring an abundance of catch.

Do you also crave relaxation in hot tubs? Easily arranged. Sitting by the campfire in the lean-to shelter? No problem. Proper sauna sessions? Absolutely! There’s also a well-equipped kitchen for your culinary needs, and a campfire spot by the shore where you can barbecue your freshly caught rainbow trout.

Evo Syväjärvi is a ready-made headquarters for fishing groups, corporate teams, and bachelor/bachelorette parties who know how to enjoy life in the wilderness. Here, you spend your time as you please – relaxed and rugged!

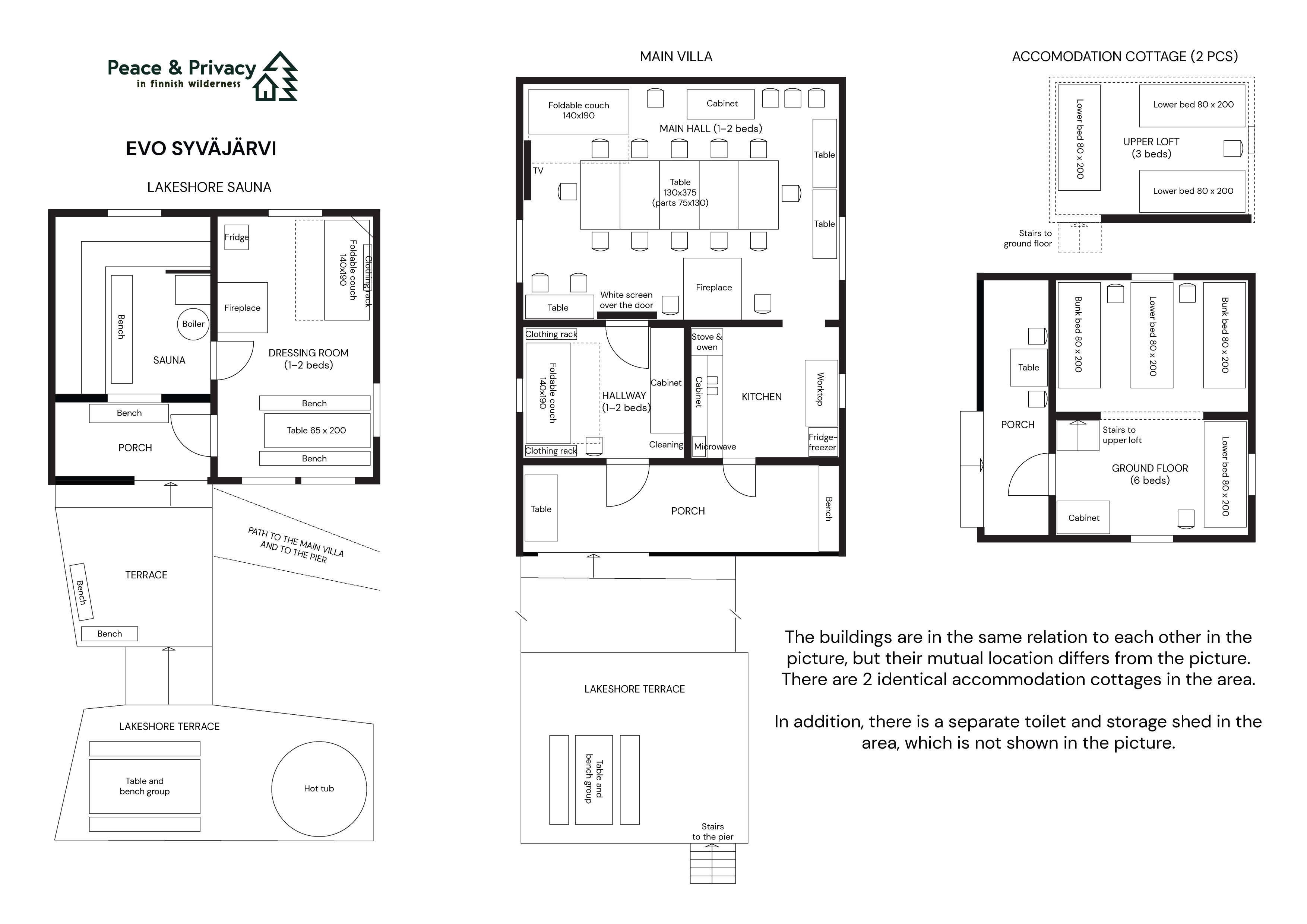
GENERAL INFORMATION: In addition to the main building and 2 accommodation buildings, all winter-heated, the Evo Syväjärvi estate includes its own beach, a lakeside sauna, a lean-to shelter, and a campfire spot. The cabins located on the shore of the fish-rich Lake Syväjärvi provide bed places for 20 guests, and there are a total of 6 rowing boats at their disposal. The estate is suitable not only for anglers and those seeking peace in cabin life, but also for workplace health promotion events and bachelor/bachelorette parties.

LOUNGE/CONFERENCE SPACES: The main building can accommodate approximately 20 people for dining, socialising, conferences, or family gatherings. It is equipped with a 42-inch flat-screen TV with computer connectivity. The room also has a projection screen, and a data projector is available upon request as an additional service. In the separate lakeside sauna building, there is a fireplace room with traditional Finnish furnishings, a fireplace, a sofa, and a refrigerator-freezer.

ACCOMMODATION: There are two separate accommodation buildings, each with space for 8 people, located near the main building and close to the shore. In each of these buildings, there are 5 bed places on the ground floor and 3 bed places in the loft.
Additionally, 2 to 4 people can stay in the main building, providing a total of 20 bed places for guests. There are blankets and pillows corresponding to the number of bed places.

KITCHEN: The kitchen is equipped with running cold and hot water, tableware for 20 people, an electric stove and oven, a refrigerator-freezer, a microwave, and a Moccamaster coffee maker.

SAUNA AND TOILETS: The wood-heated lakeside sauna can accommodate up to 10 guests on its benches. Cold running well water is available from the tap, and you can heat the washing water using the wood-heated stove’s water heater. Two dry toilets are located in a separate building between the main building and the accommodation buildings.

OUTDOOR SPACES AND HOT TUB: In front of the main building, there is an open terrace with benches. The campfire spot and lean-to shelter are located in the middle of the complex, by the lake and the stream running through the area. There is also a fish processing area, 6 rowing boats, and 3 piers in the area. On the sauna terrace, there is a wood-heated hot tub that can accommodate approximately 6 bathers at the same time.

FISHING, BOATING, AND OUTDOOR ACTIVITIES: Syväjärvi is special because of the planted rainbow trout, which we plant approximately 2500 kg per year. Chances of getting fish are much better than on the normal lakes. During spring, summer and autumn fish from the rowing boats or simply from the easy shores of Syväjärvi, and during the winter come and test ice fishing!

PRICES: The price of Evo Syväjärvi includes the main building, 2 accommodation cabins, 6 rowing boats and the use of the lakeside sauna. Additional services offer the hot tub, fishing rights and gear, the final clean-up, towels and sheets with the bed made or sheets as a stack.

REQUEST AN OFFER: Find out your price quickly and easily by filling in the offer request form. Those looking for an affordable local getaway should note that especially outside of tourist seasons and weekends, we rent our wilderness retreats at very competitive prices!

Evo Syväjärvi key facts

  • 1–50 guests in daytime use
  • 1–21 bed places in 5 accommodation facilities
  • Air conditioning
  • Tap water in kitchen
  • Tableware and drinkware
  • 2 fireplaces
  • Wood-heated lakeside sauna
  • Barbeque shelter (no portable grills)
  • Retractable screen for presentations
  • Widescreen TV (no other audio devices)
  • Outdoor hot tub for 6 persons
  • Located on the lakefront
  • Boats available in summertime
  • Fishing opportunity
  • Approximately 8 parking spaces

Distances from Evo Syväjärvi

Pricing Examples for Evo Syväjärvi

  • 20-person staying vacations or parties starting 32€/person/day
  • 15-person staying independent meetings starting 56€/person/day
  • 20-person weekend parties (Fri–Sun) starting 60€/person/weekend
  • 15-person staying meeting starting 48€/person/day
  • 15-person weekend meeting (Fri-Sun) starting 80€/person/day
Please note: The prices are indicative non-seasonal prices. We make an offer for each group based on the time, number of persons and the length of the stay. We reserve the right to change our service prices published in internet at various third party web sites.
Syväjärventie 127 16970 Hämeenlinna.

Destination basic information

  • Total area of all buildings 190 square meters
  • Built 1980
  • Parking in courtyard
  • No electric vehicle charging opportunity

Evo Syväjärvi bed places in various rooms

  • Accommodation cabins (2 pcs.)
  • Upper floor (3 pers.) 3 beds 80x200 cm
  • Ground floor (6 pers.) 4 lower bed, 2 upper bed, all 80x200 cm
  • Main Villa
  • Main Hall (1–2 pers.) Convertible couch 140x190 cm
  • Hallway (1–2 pers.) Convertible couch 140x190 cm
  • Lakeside Sauna
  • Dressing room (1–2 pers.) Convertible couch 140x190 cm
The accommodation cabins (2 pcs) can sleep a total of 18 people. The sofa beds in the main villa and the sauna dressing room can sleep 3–6 people. There are beds in Evo Syväjärvi for a total of 21 guests, or 24 guests if 2 people sleep on the convertible couches in the main building and the sauna dressing room.